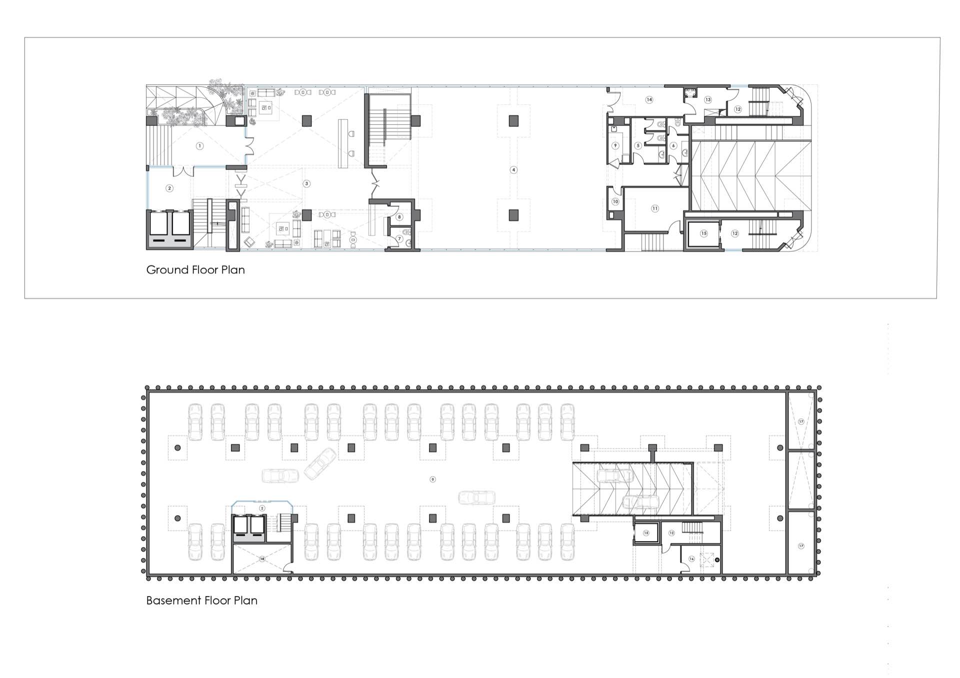
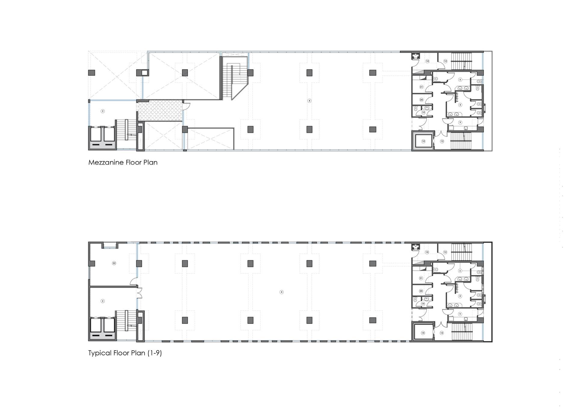
THE WORKPLACE
| Client | Condrill |
| Category | Corporate |
| Location | Main Boulevard Gulberg, Lahore |
| Area | 125,000 sqft |
| Year | 2021 |
| Status | Completed |
| Client | Condrill |
| Category | Corporate |
| Location | Main Boulevard Gulberg, Lahore |
| Area | 125,000 sqft |
| Year | 2021 |
| Status | Completed |