Imtiaz Ali Associates
×
Home
About
Team
Projects
Publications
Contact
LUMS CENTRAL BUILDING
LUMS FEMALE HOSTEL
LUMS PDC
LUMS FACULTY APARTMENTS
DRGCC APARTMENTS
THE WORKPLACE
65D RESIDENCE
FTC TOWER
DESCON CAFETERIA
GOHAR AKHTAR TRUST
ADNAN AURUNGZEB RESIDENCE
ZAHID BARRY RESIDENCE
MONAL & ASIAN WOK
CORPORATE HEADQUARTERS
BAIT UL FAZIL
BAIT UL FAZIL MOSQUE
SMDC
SMDC GIRLS HOSTEL
Firetech
SUI GAS REGIONAL HEAD OFFICE
Back to Projects
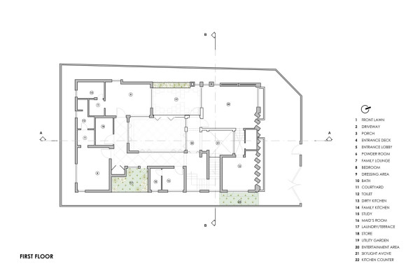
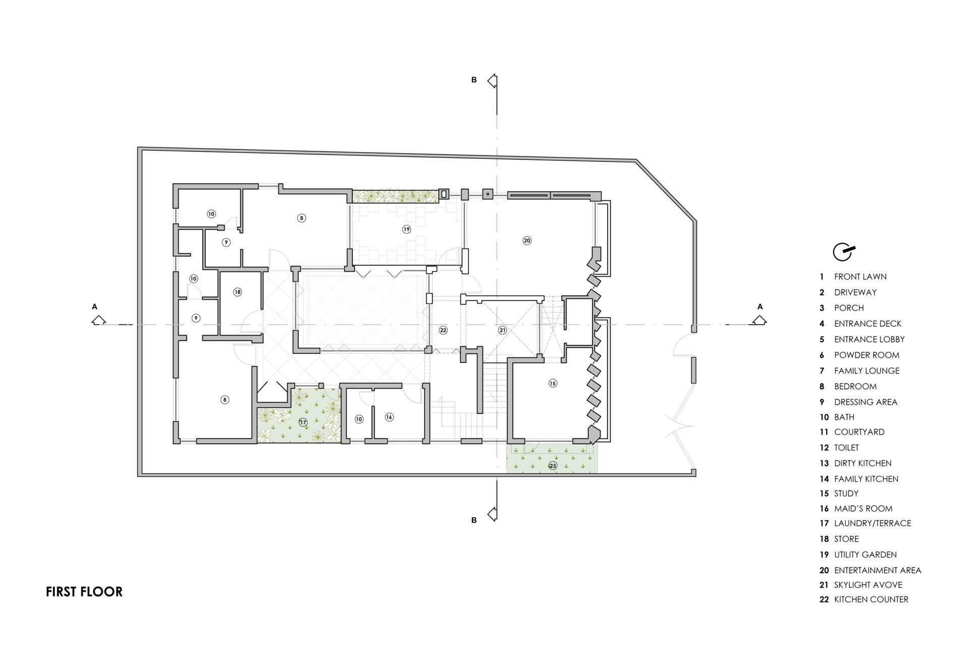
ADNAN AURUNGZEB RESIDENCE
Client
-
Category
Residential
Location
DHA Phase 6 , Lahore
Area
4,650 sqft
Year
2015
Status
Completed
Back
Next